Villa singola in vendita

Zevio, Via Aldo Moro
Informazioni in agenzia
8 locali 8 locali
399 Mq 399 Mq
5 bagni 5 bagni

Villa singola in vendita

Zevio, Via Aldo Moro

Descrizione annuncio

COSA SAPERE SULLA CASA

Ingresso – Soggiorno – Cucina – Quattro camere – Studio – Cinque bagni – Lavanderia – Guardaroba – Taverna – Garage doppio – Piscina

PARTICOLARITA’ E DESCRIZIONE

In una tranquilla zona residenziale di Zevio, proponiamo in vendita una villa singola libera su quattro lati costruita negli anni ’90, che si erge su un ampio lotto di oltre 1000 mq e sviluppata su più livelli.

Questa villa è il risultato di un progetto architettonico accurato e di alta qualità, che combina eleganza e funzionalità. La struttura è composta da quattro livelli, ognuno dei quali offre spazi ampi e luminosi, perfetti per vivere in comfort e stile.

Al piano terra, un luminoso ingresso ci conduce al soggiorno e alla cucina abitabile, entrambi spazi ideali per condividere momenti con la famiglia e gli amici. Lo studio, la lavanderia e il primo bagno finestrato completano questo piano, offrendo tutto ciò che serve per una vita quotidiana confortevole.

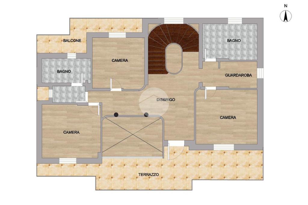
Salendo al piano primo, troviamo tre camere da letto di cui due matrimoniali e una doppia, ognuna delle quali con accesso diretto al terrazzo e progettate per offrire un rifugio tranquillo e accogliente. I due bagni finestrati e il guardaroba aggiungono ulteriore comfort e praticità alla zona notte.

Il piano secondo è dedicato ad una quarta ed ultima camera dotata di bagno e terrazzo, perfetto per godere del panorama e del sole: uno spazio ideale per rilassarsi e godere della vista, percependo un'atmosfera unica e accogliente.

Infine al piano interrato troviamo una taverna spaziosa con cucina e angolo bar, da qui raggiungiamo il garage di 48 mq.

Il giardino inoltre è impreziosito da una piscina privata, che non solo valorizza l'esterno, ma rappresenta la cornice perfetta per giornate spensierate in famiglia e serate estive tra amici.

Questa villa è un'opportunità unica per chi cerca una casa di alta qualità, con spazi ampi e luminosi in una posizione privilegiata. Sarà la scelta perfetta per chi vuole vivere in un ambiente residenziale esclusivo e tranquillo.

CONTESTO ED UBICAZIONE

Ricordiamo che il comune di Zevio e le sue frazioni dispongono di tutti i servizi di cui un cittadino necessita, come supermercati, farmacie e banche. Inoltre è ben collegato dai mezzi pubblici, di facile accesso alle tangenziali e sulla via principale possiamo trovare bar e negozi di varie attività.

Mostra tutto

Nelle vicinanze

Scuole Scuole
IC Zevio
450 m
Scuole
2,1 Km
Scuola materna
2,1 Km
Farmacia Farmacia
Farmacia San Pietro e Paolo
380 m
Farmacia della Madonna
600 m
Farmacia FMP
2,0 Km
Ospedali Ospedali
Ospedale Chiarenzi
200 m
Supermercati Supermercati
Grisi
530 m
Negozi Negozi
Buon Pane
430 m
Zucchero Filato
580 m
Penny Market
980 m
Bar Bar
Bar
210 m
Liston 21
450 m
Centrale
450 m
Milly
540 m
White Es
2,1 Km
Ristoranti Ristoranti
Ristoranti
580 m
Pastificio Zeviano
580 m
Pizzeria Trattoria Marconi
610 m
L'altro Carlo re
960 m
trattoria al bon goto
1,8 Km
Mostra tutto

Caratteristiche

Rif.:
61125983
Piano:
3 di 3 (Piano su più livelli)
Box:
1
Balconi:
1
Terrazzi:
2
Camere da letto:
4
Mostra tutto
Prezzo Prezzo
Informazioni in agenzia
Spese annue Spese annue
€ 0
Proponi il tuo prezzoProponi il tuo prezzo

Classe Energetica

E
E
E
E
E
E
E
E
E
Anno di costruzione:
1991
Riscaldamento:
Autonomo
Tipo impianto:
A radiatori
Tipo alimentazione:
Metano

Ti interessa visionare l'immobile?

Fissa un appuntamento  Fissa un appuntamento

Richiedi informazioni

Clicca su Leggi per aprire l'informativa
* Questi campi sono obbligatori
Affiliato
Studio Mdc Sas
P.zza Ungheria, 34/B 37059 Zevio (VR)

Il nostro staff


  • Valerio Caruso
    Affiliato

  • Giulia Facchin
    Coordinatrice

  • Matteo Pasini
    Collaboratore

  • Eusebiu Cristian Tibulca
    Collaboratore

  • Luca Tosi
    Collaboratore
P.zza Ungheria, 34/B 37059 Zevio (VR)
Zona: Zevio-Campagnola-Santa Maria-Bosco-Volon-Perzacco
Mostra su mappa
Affiliato
Studio Mdc Sas
P.zza Ungheria, 34/B 37059 Zevio (VR)

2026 Tecnocasa Franchising S.p.A. - P. IVA 08365160152 - Via Monte Bianco 60/A 20089 Rozzano (MI). Ogni agenzia ha un proprio titolare ed è autonoma. Privacy policy | Policy utilizzo | Cookie policy