Casa indipendente in vendita

Zevio, Via Stefano da Zevio
€ 260.000
7 locali 7 locali
376 Mq 376 Mq
2 bagni 2 bagni

Casa indipendente in vendita

Zevio, Via Stefano da Zevio

Descrizione annuncio

COSA SAPERE SULLA CASA

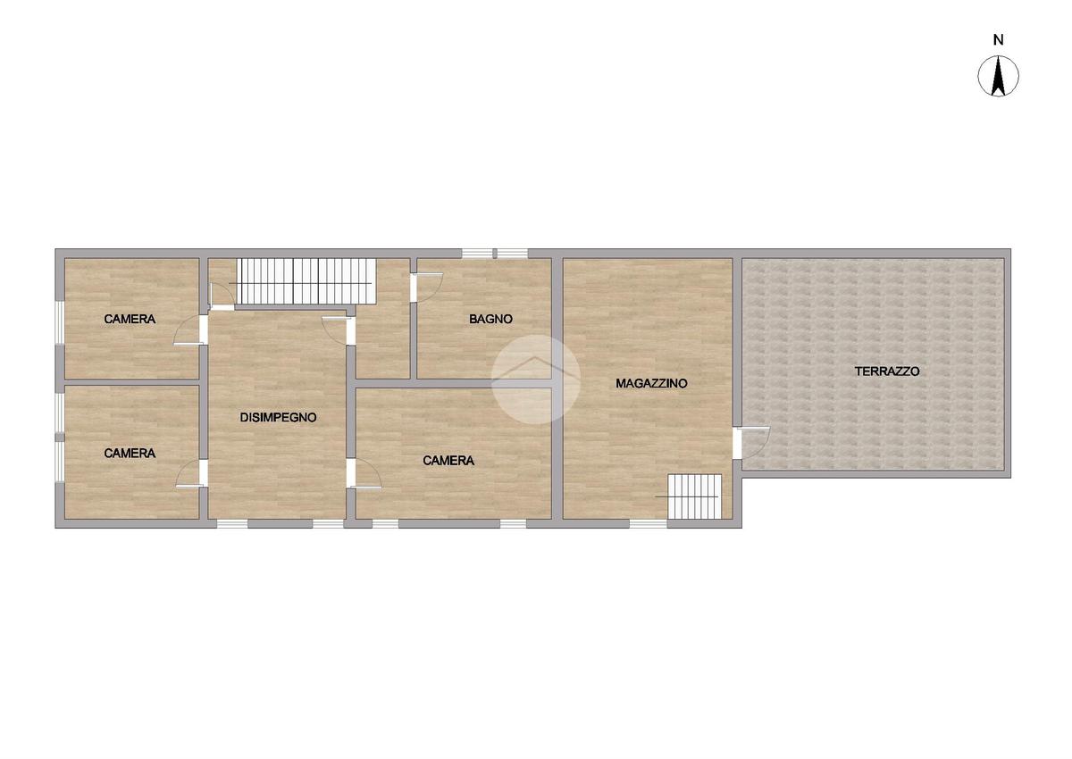
Ingresso – Soggiorno – Cucina – Sala da pranzo – Quattro camere – Due bagni –Magazzino– Due garage

PARTICOLARITÀ E DESCRIZIONE

In posizione tranquilla e riservata, proponiamo in vendita una soluzione indipendente di generose metrature, ideale per chi desidera ampi spazi abitativi e una grande corte privata da vivere in ogni stagione.

L’abitazione si sviluppa su più livelli e offre una distribuzione degli ambienti funzionale e accogliente. Al piano terra si trova una spaziosa cucina, un soggiorno separato e una luminosa sala da pranzo, oltre all’ingresso principale che introduce alla zona giorno. Completano il livello una comoda camera da letto e un pratico magazzino collegato internamente, dal quale si accede al piano superiore tramite una scala interna.

Il piano primo ospita tre ampie camere da letto, ideali per tutta la famiglia, e un bagno finestrato.

Salendo ancora, l’ultimo piano accoglie una grande soffitta, spaziosa e versatile, ideale come ulteriore ambiente di servizio, zona hobby, deposito o per eventuali progetti di ampliamento e personalizzazione.

A completare la proprietà vi è un ampio ricovero attrezzi di circa 150 mq, utilizzabile come deposito o magazzino, e una corte privata di generose dimensioni, che garantisce privacy e ampio spazio per parcheggi, giardino o area conviviale all’aperto.

Grazie alla disposizione interna e agli ampi spazi, questa soluzione si presta perfettamente anche ad essere abitata da più di un nucleo familiare. È infatti possibile valutare la suddivisione dell’immobile in due unità abitative indipendenti, mantenendo comunque l’autonomia e la comodità degli ambienti.

L'immobile è una soluzione originale degli anni '60, internamente presenta finiture signorili dell'epoca e benché sia di fatto abitabile, si rende necessario un intervento di ripristino volto a rimodernarlo sia nelle finiture, sia nella riqualificazione energetica.
Nel 2015 sono stati rifatti completamente i bagni.

CONTESTO ED UBICAZIONE

Il comune di Zevio e le sue frazioni dispongono di tutti i servizi di cui un cittadino necessita, come supermercati, farmacie e banche. Inoltre è ben collegato dai mezzi pubblici, di facile accesso alle tangenziali e sulla via principale possiamo trovare bar e negozi di varie attività. La posizione centrale e la vicinanza ai servizi rendono questa proprietà un'opportunità ideale per chi cerca una casa comoda e ben collegata

Mostra tutto

Nelle vicinanze

Scuole Scuole
IC Zevio
360 m
Scuole
1,9 Km
Scuola materna
2,6 Km
Farmacia Farmacia
Farmacia della Madonna
310 m
Farmacia San Pietro e Paolo
400 m
Farmacia FMP
1,7 Km
Ospedali Ospedali
Ospedale Chiarenzi
570 m
Supermercati Supermercati
Grisi
320 m
Negozi Negozi
Zucchero Filato
320 m
Buon Pane
420 m
Penny Market
740 m
Bar Bar
Milly
420 m
Bar
430 m
Liston 21
580 m
Centrale
670 m
White Es
1,9 Km
Ristoranti Ristoranti
Pizzeria Trattoria Marconi
220 m
Pastificio Zeviano
380 m
L'altro Carlo re
770 m
Ristoranti
1,4 Km
Trattoria Andreoli
1,7 Km
Mostra tutto

Caratteristiche

Rif.:
61135118
Piano:
3 di 3 (Piano su più livelli)
Box:
2
Terrazzi:
1
Camere da letto:
4
Arredamento:
Assente
Mostra tutto
Prezzo Prezzo
€ 260.000
Rata mutuo Rata mutuo
€ 1.225 / mese
Spese annue Spese annue
€ 0
Proponi il tuo prezzoProponi il tuo prezzo

Classe Energetica

D
D
D
D
D
D
D
D
D
EP globale non rinnovabile:
134.73 kW h/m² anno
EP globale rinnovabile:
134.73 kW h/m² anno
EP invernale del fabbricato:
EP estiva del fabbricato:
Anno di costruzione:
1960
Riscaldamento:
Autonomo
Tipo impianto:
A radiatori
Tipo alimentazione:
Metano

Ti interessa visionare l'immobile?

Fissa un appuntamento  Fissa un appuntamento

Richiedi informazioni

Clicca su Leggi per aprire l'informativa
* Questi campi sono obbligatori

Calcola il tuo mutuo

Semplice e senza impegno
Anticipo

( % )
Mutuo

( % )

pochi semplici passi

inserisci i tuoi dati
Questionario completato
Grazie per aver richiesto un appuntamento senza impegno con un nostro Consulente del Credito e Assicurativo.

Hai inserito correttamente tutti i dati necessari e a breve riceverai una e-mail con un link da convalidare per inviare i tuoi dati.
Affiliato
Studio Mdc Sas
P.zza Ungheria, 34/B 37059 Zevio (VR)

Il nostro staff


  • Valerio Caruso
    Affiliato

  • Giulia Facchin
    Coordinatrice

  • Matteo Pasini
    Collaboratore

  • Eusebiu Cristian Tibulca
    Collaboratore

  • Luca Tosi
    Collaboratore
P.zza Ungheria, 34/B 37059 Zevio (VR)
Zona: Zevio-Campagnola-Santa Maria-Bosco-Volon-Perzacco
Mostra su mappa
Affiliato
Studio Mdc Sas
P.zza Ungheria, 34/B 37059 Zevio (VR)

2026 Tecnocasa Franchising S.p.A. - P. IVA 08365160152 - Via Monte Bianco 60/A 20089 Rozzano (MI). Ogni agenzia ha un proprio titolare ed è autonoma. Privacy policy | Policy utilizzo | Cookie policy